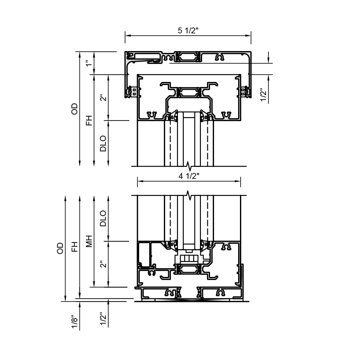
Vitralum 451T Thermal Storefront

Creative possiblities are endless with our Vitralum 451T thermal aluminum storefront system. The 4.5” depth center plane framing system is suited for both exterior and interior applications - such as vestibules and partitions. Combine with our storefront doors and/or vented windows to easily create configurations that adapt to meet your project requirements.

Vitralum 451T is designed to protect against the elements with thermally broken construction to reduce heat transfer, prevent condensation and improve energy efficiency and comfort. Features 2” sitelines for use with 1” insulated glass units standard. Vitralum offers standard Class I anodized finishes in clear and black-bronze (extra dark bronze) and project specific custom paint, powder coat and anodizing are available per request.

DOWNLOAD 451T PRODUCT BROCHURE

THERMAL ADVANTAGE

For optimal thermal performance and UV protection, pair Vitralum 451T with Low-E coated insulated glass units. Low-E coating reflects temperatures back in side, keeping the room warm or cool.

451T thermal simulation illustrating temperature difference.

SIMPLIFY INSTALLATION

Available head receptor and sill flashing makes installation a breeze with the Vitralum 451T system. Sill flashing provides added moisture prevention, directing water toward the exterior. Head receptors allow for expansion and contraction and ease installation.

Next
Next

Storefront Doors