Vitralum Bifold Storefront Doors

Offering wide, unobstructed openings, Vitralum Standard Bifold Doors transform your space with minimal aesthetics and maxium flexibility. Available for both outswing and inswing applications, heavy-duty top hung panels are able to move and stack left and/or right, with the option for single swing doors for use during the off-season. To meet your requirements, the system offers both a low-profile ADA bottom guide track or a weather-resistant raised sill.

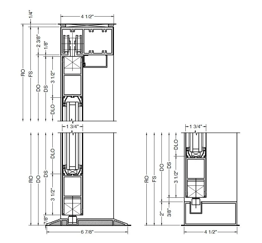
Vitralum Standard Bifold Doors are standard 1.75” depth, available with narrow (2.125”) or medium (3.5”) stile sizes, including a variety of intermediate and bottom rail options. Glass stops are compatible with 1/4”, 1/2” and 1” glass. Vitralum offers standard Class I anodized finishes in clear and black-bronze (extra dark bronze) and project specific custom paint, powder coat and anodizing are available per request.

DOWNLOAD BIFOLD STOREFRONT DOORS PRODUCT BROCHURE

ADA THRESHOLD

RAISED SILL

ELEVATION SECTIONS

FEATURES

  • Suited for both interior and exterior applications

  • Doors can swing in or out per project requirements

  • ADA Threshold or raised sill options

  • For door openings up to 10” H

  • Maxiumum panel width 4’

  • Heavy duty construction: full penetration welds plus mechanical fasteners at each structral joint

  • Modern style square glass stops for 1/4” up to 1” glass

  • Custom hardware applications per request

PLAN SECTIONS

Previous
Previous

Storefront Doors

Next
Next

2500 STH Thermal Windows